For sale 120.000€ - Apartment, Villa and detached house
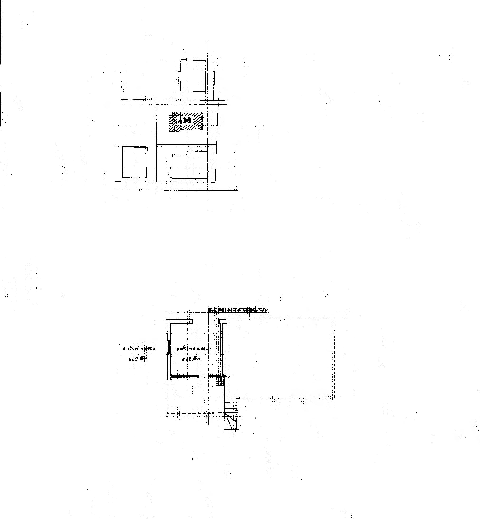
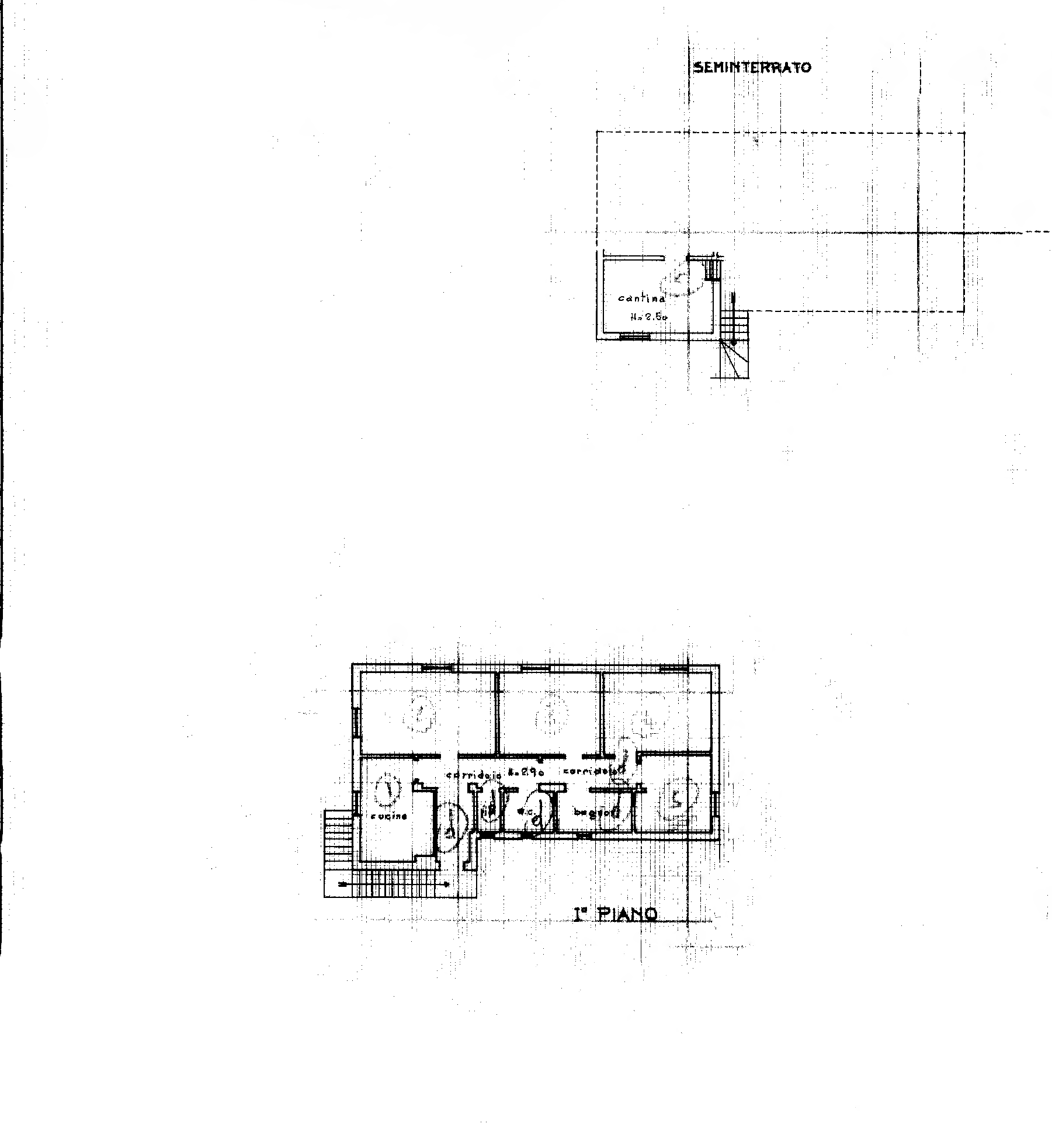
In the heart of Pontremoli’s city center, within a semi-detached building, we offer an approximately 130 sq m apartment, complete with garage and cellar.
The property is located on the first and top floor, with a private entrance, and features spacious and well-arranged spaces.
The entrance leads to the eat-in kitchen and spacious living room, ideal spaces for everyday life and hosting guests. A convenient hallway leads to the sleeping area, consisting of three bedrooms, two bathrooms, and a storage room.
In the basement, accessible via an external ramp with a maneuvering area, there is a spacious garage of approximately 24 sq m and a cellar. There is also a double entrance, including one from the front of the building, making the spaces particularly functional.
The property is equipped with independent natural gas heating; the windows, almost completely replaced, are made of PVC with double glazing, ensuring comfort and insulation.
The property also includes a large, fenced communal garden surrounding the building, offering a usable and private green space.
The strategic location is central and convenient to all amenities, while maintaining privacy and tranquility.









































































